Bilocale in vendita

Roma, Via Suor Celestina Donati - Pineta Sacchetti
€ 249.000
2 locali 2 locali
90 Mq 90 Mq
1 bagno 1 bagno

Bilocale in vendita

Roma, Via Suor Celestina Donati - Pineta Sacchetti

Descrizione annuncio

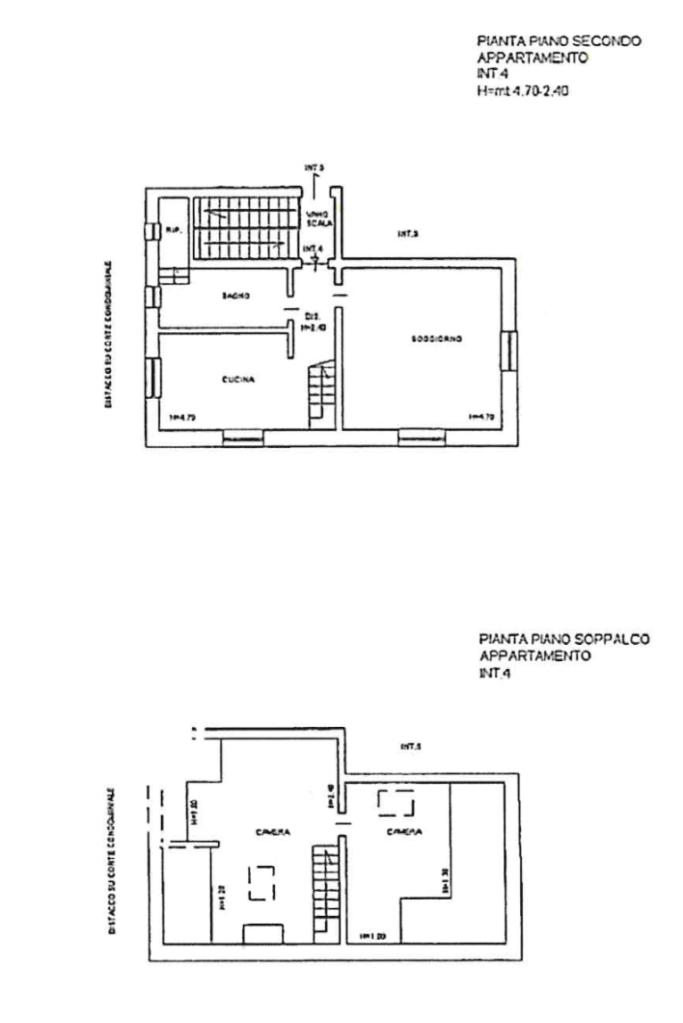
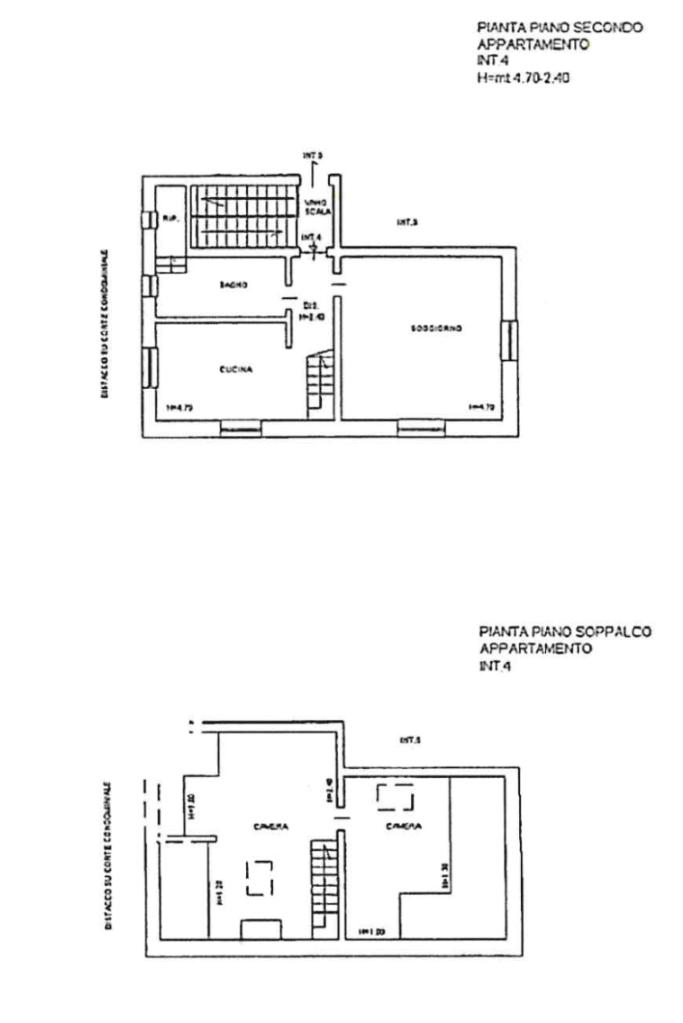
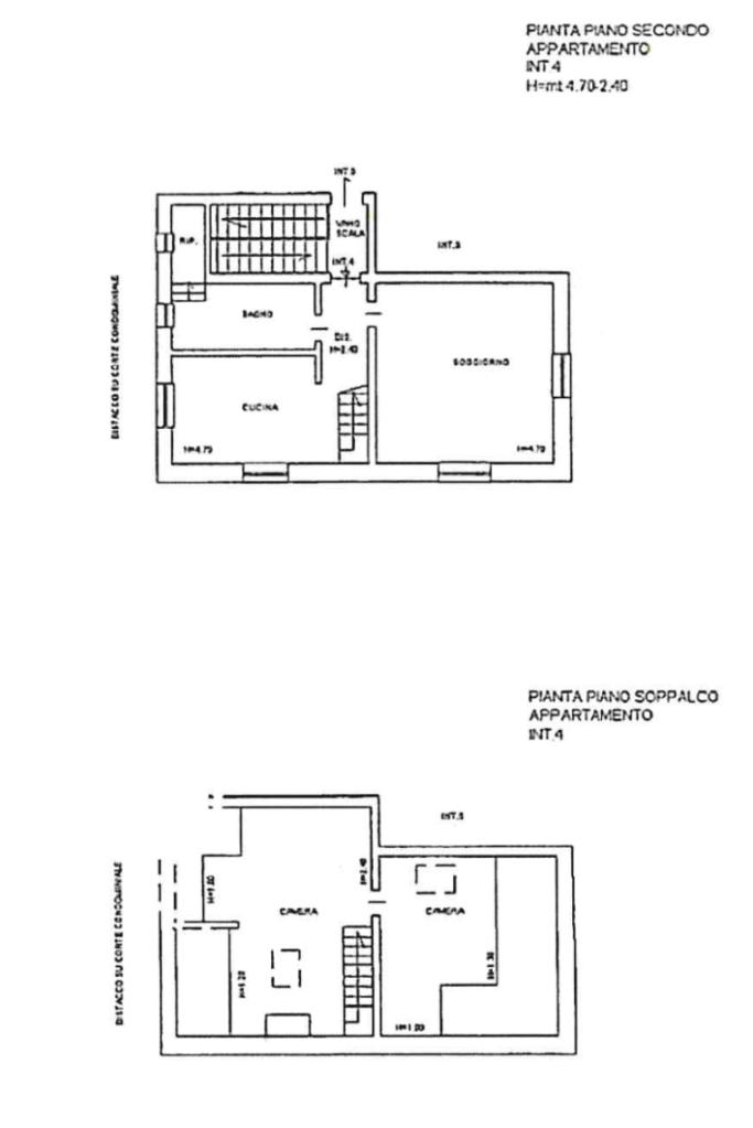
VIA SUOR CELESTINA DONATI - A pochi passi dall’Ospedale Cristo Re, nelle immediate vicinanze del Policlinico Gemelli e dell’Università Cattolica del Sacro Cuore in un contesto tranquillo e riservato, proponiamo la vendita di un immobile unico nel suo genere, situato al secondo ed ultimo piano di una piccola palazzina in tinta composta da soli 6 appartamenti.

L’appartamento, completamente ristrutturato nel 2024, si sviluppa su due livelli ed è così composto:

Al primo livello troviamo un ampio soggiorno a vista, cucina abitabile di 12 mq, bagno finestrato con doccia, e comodo ripostiglio. Mentre al secondo livello (mansardato) vi è una camera da letto un secondo ambiente ideale come studio, cabina armadio o cameretta.

L'immobile è luminoso e posto in un contesto riservato e silenzioso, ideale per chi cerca tranquillità senza rinunciare alla comodità dei collegamenti e dei servizi. Perfetto come investimento, data la vicinanza con ospedali e università, ma anche ottimo per una giovane coppia in cerca della prima casa.

La zona è ben collegata con i mezzi pubblici ci troviamo vicino alla Metropolitana di Cornelia e di Battistini (linea A), vicino alla fermata Gemelli del treno FM3 e ci sono numerose linee di Autobus (49 - 146 - 446 - 916 - 980).

Per quanto riguarda i servizi sono presenti vari supermercati e su via Boccea negozi di qualsiasi genere. Da considerare anche la vicinanza con l'Ospedale Cristo Re, con il Policlinico Gemelli e con l'Università Cattolica di Roma

Per ulteriori informazioni, contattare il numero di telefono 06.61660395 o inviare un'email all'indirizzo indicato. Sono disponibili documentazione tecnica e grafica indicativa. Offriamo anche una vasta gamma di servizi, tra cui assistenza completa fino al rogito notarile.

Mostra tutto

Nelle vicinanze

Trasporto pubblico Trasporto pubblico
Battistini
Battistini
1,5 Km
Cornelia
Cornelia
2,1 Km
Gemelli
Gemelli
1,1 Km
stazione di Roma Balduina
stazione di Roma Balduina
1,4 Km
Battistini/Cardinal Mercati
Battistini/Cardinal Mercati
120 m
Ricariche auto elettriche Ricariche auto elettriche
Eneldrive Battistini
1,5 Km
Axpo - Stazio
2,1 Km
Rome Cavalieri, A Waldorf Astoria Resort
2,2 Km
The Church Palace
2,6 Km
Roma Clodio | EnelX
2,8 Km
Scuole Scuole
Scuole
340 m
Istituto Professionale Stendhal
430 m
Liceo Scientifico Statale Evangelista Torricelli
750 m
Taggia
1,3 Km
ITI Albert Einstein
1,5 Km
Farmacia Farmacia
Farmacia Colapinto
550 m
Farmacia Crescimanno
680 m
Farmacia Pineta Sacchetti
880 m
Farmacia
880 m
Farmacia Gemelli
1,3 Km
Ospedali Ospedali
Pronto Soccorso Ospedale "Cristo Re"
120 m
Ospedale Cristo Re
130 m
Ospedali
1,1 Km
Complesso Integrato Columbus
1,2 Km
Hospice Villa Speranza
1,5 Km
Supermercati Supermercati
Conad
480 m
Maridan
540 m
Alta
740 m
PIM
740 m
Todis discount
740 m
Negozi Negozi
Negozi
650 m
VAMP
690 m
Alimentari
810 m
Diffusione Tessile
880 m
Micros
890 m
Bar Bar
Caffè Van Gogh
680 m
Bar Centodolci
700 m
Bar
870 m
GM Bar
880 m
Dea & Dea Bar
1,1 Km
Ristoranti Ristoranti
Lievito 72
490 m
Taverna al Bcco
550 m
Ponypizza Pineta Sacchetti
720 m
Happy Hours
800 m
Taverna Sacchetti
810 m
Mostra tutto

Caratteristiche

Rif.:
61172478
Piano:
2 di 2 (ultimo Piano)
Camere da letto:
2
Arredamento:
Assente
Condizionamento:
Assente
Ascensore:
No
Mostra tutto
Prezzo Prezzo
€ 249.000
Rata mutuo Rata mutuo
€ 1.183 / mese
Spese annue Spese annue
€ 800
Proponi il tuo prezzoProponi il tuo prezzo

Classe Energetica

F
F
F
F
F
F
F
F
F
EP globale non rinnovabile:
0.00 kW h/m² anno
EP globale rinnovabile:
199.94 kW h/m² anno
EP invernale del fabbricato:
EP estiva del fabbricato:
Anno di costruzione:
1960
Riscaldamento:
Autonomo
Tipo impianto:
A radiatori
Tipo alimentazione:
Metano

Ti interessa visionare l'immobile?

Fissa un appuntamento  Fissa un appuntamento

Richiedi informazioni

Clicca su Leggi per aprire l'informativa
* Questi campi sono obbligatori

Calcola il tuo mutuo

Semplice e senza impegno
Anticipo

( % )
Mutuo

( % )

pochi semplici passi

inserisci i tuoi dati
Questionario completato
Grazie per aver richiesto un appuntamento senza impegno con un nostro Consulente del Credito e Assicurativo.

Hai inserito correttamente tutti i dati necessari e a breve riceverai una e-mail con un link da convalidare per inviare i tuoi dati.
Affiliato
Immobiliare Pineta Sacchetti Srls
Via Del Forte Braschi, 46 00167 Roma (RM)

Il nostro staff


  • Fabrizio Fiorucci
    Affiliato

  • Pasquale Prencipe
    Responsabile

  • Silvia Gavioli
    Coordinatrice
Via Del Forte Braschi, 46 00167 Roma (RM)
Zona: Battistini - Pineta Sacchetti
Mostra su mappa
Orari: lunedì - venerdì 09:00-13:00 15:30-19.30, sabato 9:00/13:00
Affiliato
Immobiliare Pineta Sacchetti Srls
Via Del Forte Braschi, 46 00167 Roma (RM)

2026 Tecnocasa Franchising S.p.A. - P. IVA 08365160152 - Via Monte Bianco 60/A 20089 Rozzano (MI). Ogni agenzia ha un proprio titolare ed è autonoma. Privacy policy | Policy utilizzo | Cookie policy