Quadrilocale in vendita

Roma, Via cardinal salotti - Pineta Sacchetti
€ 379.000
Prezzo aggiornato
4 locali 4 locali
126 Mq 126 Mq
2 bagni 2 bagni

Quadrilocale in vendita

Roma, Via cardinal salotti - Pineta Sacchetti

Descrizione annuncio

VIA CARDINAL SALOTTI - A pochi passi dall’Ospedale Cristo Re, nelle immediate vicinanze del Policlinico Gemelli e dell’Università Cattolica del Sacro Cuore in un contesto tranquillo e riservato, proponiamo la vendita di un ampio appartamento, situato al primo piano di una palazzina in cortina dotata di ascensore.

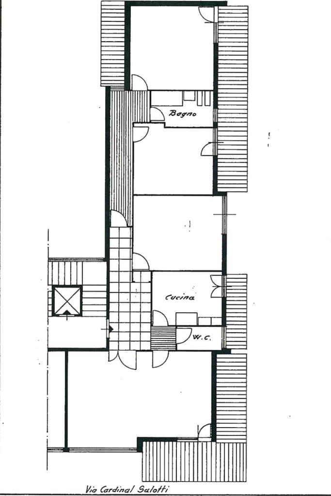
L’immobile si presenta in buone condizioni e si compone di ingresso, salone doppio, cucina abitabile, tre camere da letto, disimpegno, bagno patronale finestrato con vasca oltre che un bagno di servizio, e quattro balconi.

Completano la proprietà la presenza di una comoda cantina e di un box auto coperto.

L’appartamento è dotato di riscaldamento autonomo, impianto di condizionamento e infissi nuovi.

La tripla esposizione lo rende particolarmente luminoso e accogliente con affacci su un contesto tranquillo, silenzioso e riservato.

Un'ottima soluzione per chi cerca tranquillità, luminosità e spazi versatili, senza rinunciare alla vicinanza ai principali servizi e collegamenti. L'immobile è situato a pochi metri da Via della Pineta Sacchetti a dal Parco regionale urbano del Pineto, un'area naturale protetta di circa 240 ettari, dove oltre ad una splendida Pineta è presente anche un casale rurale storico recentemente restaurato e adibito a Biblioteca Comunale del XII municipio.

La zona è ben collegata con i mezzi pubblici ci troviamo vicino alla Metropolitana di Cornelia e di Battistini (linea A), vicino alla fermata Gemelli del treno FM3 e ci sono numerose linee di Autobus (49 - 146 - 446 - 916 - 980).

Per quanto riguarda i servizi sono presenti vari supermercati e su via Boccea negozi di qualsiasi genere. Da considerare anche la vicinanza con l'Ospedale Cristo Re, con il Policlinico Gemelli e con l'Università Cattolica di Roma

Per ulteriori informazioni, contattare il numero di telefono 06.61660395 o inviare un'email all'indirizzo indicato. Sono disponibili documentazione tecnica e grafica indicativa. Offriamo anche una vasta gamma di servizi, tra cui assistenza completa fino al rogito notarile.

Mostra tutto

Nelle vicinanze

Trasporto pubblico Trasporto pubblico
Battistini
Battistini
1,3 Km
Cornelia
Cornelia
1,9 Km
Gemelli
Gemelli
1,3 Km
stazione di Roma Balduina
stazione di Roma Balduina
1,3 Km
Pineta Sacchetti/Calasanziane
Pineta Sacchetti/Calasanziane
150 m
Ricariche auto elettriche Ricariche auto elettriche
Eneldrive Battistini
1,3 Km
Axpo - Stazio
2,0 Km
Rome Cavalieri, A Waldorf Astoria Resort
2,1 Km
The Church Palace
2,3 Km
Roma Clodio | EnelX
2,7 Km
Scuole Scuole
Scuole
450 m
Istituto Professionale Stendhal
550 m
Liceo Scientifico Statale Evangelista Torricelli
550 m
ITI Albert Einstein
1,4 Km
Taggia
1,5 Km
Farmacia Farmacia
Farmacia Crescimanno
620 m
Farmacia
690 m
Farmacia Colapinto
790 m
Farmacia Pineta Sacchetti
1,0 Km
Farmacia la fenicia
1,2 Km
Ospedali Ospedali
Ospedale Cristo Re
120 m
Pronto Soccorso Ospedale "Cristo Re"
130 m
Complesso Integrato Columbus
1,3 Km
Ospedali
1,3 Km
Hospice Villa Speranza
1,6 Km
Supermercati Supermercati
Maridan
300 m
Todis discount
630 m
Alta
640 m
Conad
640 m
Emme Più
760 m
Negozi Negozi
Negozi
600 m
VAMP
630 m
Diffusione Tessile
690 m
Alimentari
730 m
Minimarket
940 m
Bar Bar
Bar
640 m
Caffè Van Gogh
820 m
Bar Centodolci
830 m
Dea & Dea Bar
1,0 Km
GM Bar
1,0 Km
Ristoranti Ristoranti
Lievito 72
270 m
Taverna al Bcco
310 m
Ponypizza Pineta Sacchetti
860 m
Taverna Sacchetti
960 m
Happy Hours
990 m
Mostra tutto

Caratteristiche

Rif.:
61179531
Piano:
1 di 4 con ascensore (Piano basso)
Box:
1
Balconi:
4
Camere da letto:
3
Arredamento:
Assente
Mostra tutto
Prezzo Prezzo
€ 379.000
Rata mutuo Rata mutuo
€ 1.800 / mese
Spese annue Spese annue
€ 1.200
Proponi il tuo prezzoProponi il tuo prezzo

Classe Energetica

G
G
G
G
G
G
G
G
G
EP globale non rinnovabile:
175.00 kW h/m² anno
EP globale rinnovabile:
0.00 kW h/m² anno
EP invernale del fabbricato:
EP estiva del fabbricato:
Anno di costruzione:
1965
Riscaldamento:
Autonomo
Tipo impianto:
A radiatori
Tipo alimentazione:
Metano

Prezzo ridotto di €1 (5%%)

Ti interessa visionare l'immobile?

Fissa un appuntamento  Fissa un appuntamento

Richiedi informazioni

Clicca su Leggi per aprire l'informativa
* Questi campi sono obbligatori

Calcola il tuo mutuo

Semplice e senza impegno
Anticipo

( % )
Mutuo

( % )

pochi semplici passi

inserisci i tuoi dati
Questionario completato
Grazie per aver richiesto un appuntamento senza impegno con un nostro Consulente del Credito e Assicurativo.

Hai inserito correttamente tutti i dati necessari e a breve riceverai una e-mail con un link da convalidare per inviare i tuoi dati.
Affiliato
Immobiliare Pineta Sacchetti Srls
Via Del Forte Braschi, 46 00167 Roma (RM)

Il nostro staff


  • Fabrizio Fiorucci
    Affiliato

  • Pasquale Prencipe
    Responsabile

  • Silvia Gavioli
    Coordinatrice
Via Del Forte Braschi, 46 00167 Roma (RM)
Zona: Battistini - Pineta Sacchetti
Mostra su mappa
Orari: lunedì - venerdì 09:00-13:00 15:30-19.30, sabato 9:00/13:00
Affiliato
Immobiliare Pineta Sacchetti Srls
Via Del Forte Braschi, 46 00167 Roma (RM)

2026 Tecnocasa Franchising S.p.A. - P. IVA 08365160152 - Via Monte Bianco 60/A 20089 Rozzano (MI). Ogni agenzia ha un proprio titolare ed è autonoma. Privacy policy | Policy utilizzo | Cookie policy