Bilocale in vendita

Roma, Piazza Pio IX - Pineta Sacchetti
€ 159.000
2 locali 2 locali
51 Mq 51 Mq
1 bagno 1 bagno

Bilocale in vendita

Roma, Piazza Pio IX - Pineta Sacchetti

Descrizione annuncio

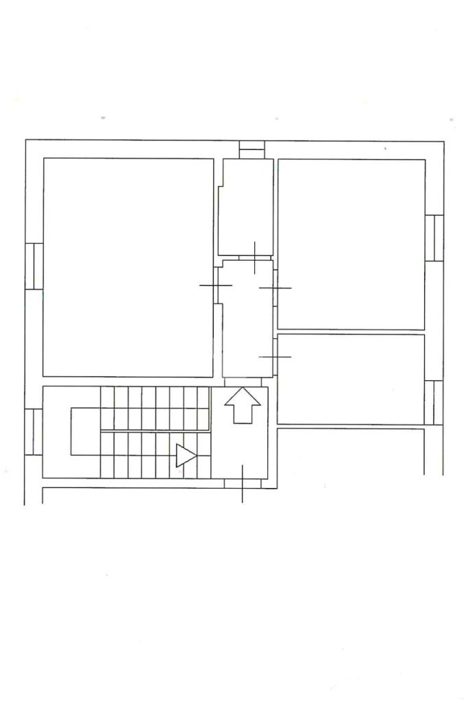
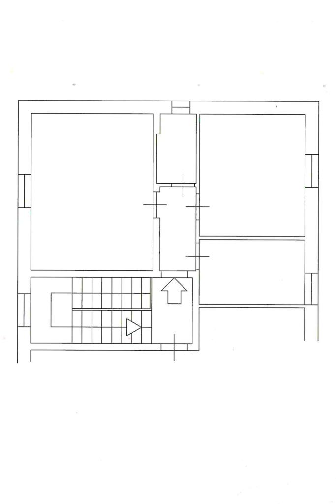
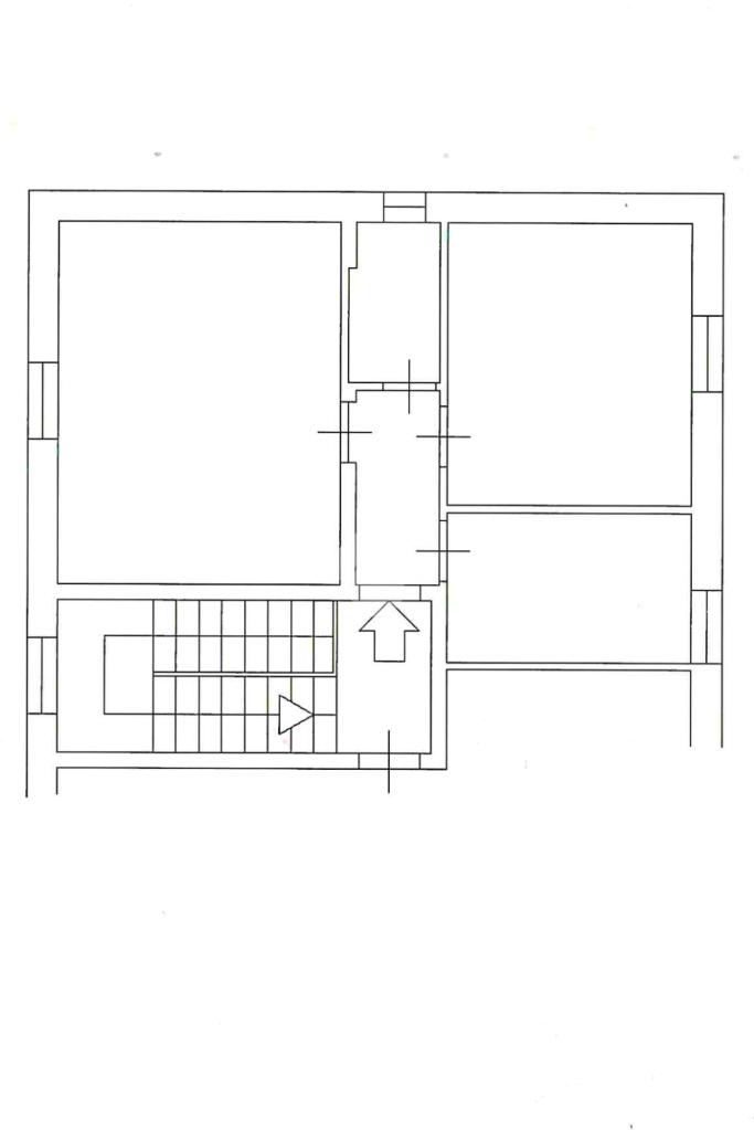
PIAZZA PIO IX - Proponiamo la vendita di uno splendido bilocale in buonissime condizioni situato al secondo piano di una palazzina in tinta senza ascensore. L'immobile si distingue per la sua luminosità e la sua tripla esposizione. La composizione attuale comprende un ingresso, soggiorno, camera matrimoniale, cucina abitabile, bagno finestrato con vasca.

OTTIMO USO INVESTIMENTO IN QUANTO LOCATO SINO AL 31/07/2027.

Un'ottima soluzione per chi cerca tranquillità, luminosità e spazi versatili, senza rinunciare alla vicinanza ai principali servizi e collegamenti. L'immobile è situato a pochi metri da Via della Pineta Sacchetti a dal Parco regionale urbano del Pineto, un'area naturale protetta di circa 240 ettari, dove oltre ad una splendida Pineta è presente anche un casale rurale storico recentemente restaurato e adibito a Biblioteca Comunale del XII municipio

La zona è ben collegata con i mezzi pubblici ci troviamo vicino alla Metropolitana di Cornelia e di Battistini (linea A), vicino alla fermata Gemelli del treno FM3 e ci sono numerose linee di Autobus.

Per quanto riguarda i servizi sono presenti vari supermercati e su via Boccea negozi di qualsiasi genere. Da considerare anche la vicinanza con l'Ospedale Cristo Re, con il Policlinico Gemelli e con l'Università Cattolica di Roma

Per ulteriori informazioni, contattare il numero di telefono 06.61660395 o inviare un'email all'indirizzo indicato. Sono disponibili documentazione tecnica e grafica indicativa. Offriamo anche una vasta gamma di servizi, tra cui assistenza completa fino al rogito notarile.

Mostra tutto

Nelle vicinanze

Trasporto pubblico Trasporto pubblico
Battistini
Battistini
780 m
Cornelia
Cornelia
1,2 Km
Appiano
Appiano
1,4 Km
stazione di Roma Balduina
stazione di Roma Balduina
1,6 Km
Pineta Sacchetti/Calisto II
Pineta Sacchetti/Calisto II
140 m
Ricariche auto elettriche Ricariche auto elettriche
Eneldrive Battistini
820 m
The Church Palace
1,6 Km
Rome Cavalieri, A Waldorf Astoria Resort
2,2 Km
Roma Gregorio VII | EnelX
2,2 Km
Axpo - Stazio
2,3 Km
Scuole Scuole
Liceo Scientifico Statale Evangelista Torricelli
350 m
Scuole
370 m
Istituto Professionale Stendhal
1,1 Km
ITI Albert Einstein
1,1 Km
Istituto Comprensivo Diogene Romeo Chiodi
1,5 Km
Farmacia Farmacia
Farmacia
320 m
Farmacia la fenicia
770 m
Pulker Farma
800 m
Farmacia Crescimanno
810 m
Farmacia Pollicina
1,5 Km
Ospedali Ospedali
Ospedale Cristo Re
860 m
Pronto Soccorso Ospedale "Cristo Re"
860 m
Clinica Villa Benedetta
1,1 Km
IDI (Istituto Dermopatico dell'Immacolata)
1,2 Km
AISPS Roma - Centro di Sessuologia
1,7 Km
Supermercati Supermercati
Emme Più
80 m
Maridan
450 m
Conad
540 m
Todis discount
640 m
Alta
720 m
Negozi Negozi
Diffusione Tessile
380 m
Family Factor
790 m
Alimentari
790 m
Negozi
790 m
VAMP
800 m
Bar Bar
Bar
120 m
Dea & Dea Bar
840 m
Ghisbi Bar
1,4 Km
Bar Centodolci
1,5 Km
Caffè Van Gogh
1,5 Km
Ristoranti Ristoranti
Taverna al Bcco
430 m
Lievito 72
490 m
Lo zio Frankie
800 m
Mattarello
950 m
Pinco Pallino
1,0 Km
Mostra tutto

Caratteristiche

Rif.:
61199082
Piano:
2 di 2 (Piano medio)
Camere da letto:
1
Arredamento:
Completo
Condizionamento:
Assente
Ascensore:
No
Mostra tutto
Prezzo Prezzo
€ 159.000
Rata mutuo Rata mutuo
€ 755 / mese
Spese annue Spese annue
€ 360
Proponi il tuo prezzoProponi il tuo prezzo

Classe Energetica

G
G
G
G
G
G
G
G
G
EP globale non rinnovabile:
272.99 kW h/m² anno
EP globale rinnovabile:
0.00 kW h/m² anno
EP invernale del fabbricato:
EP estiva del fabbricato:
Anno di costruzione:
1950
Riscaldamento:
Autonomo
Tipo impianto:
A radiatori
Tipo alimentazione:
Metano

Ti interessa visionare l'immobile?

Fissa un appuntamento  Fissa un appuntamento

Richiedi informazioni

Clicca su Leggi per aprire l'informativa
* Questi campi sono obbligatori

Calcola il tuo mutuo

Semplice e senza impegno
Anticipo

( % )
Mutuo

( % )

pochi semplici passi

inserisci i tuoi dati
Questionario completato
Grazie per aver richiesto un appuntamento senza impegno con un nostro Consulente del Credito e Assicurativo.

Hai inserito correttamente tutti i dati necessari e a breve riceverai una e-mail con un link da convalidare per inviare i tuoi dati.
Affiliato
Immobiliare Pineta Sacchetti Srls
Via Del Forte Braschi, 46 00167 Roma (RM)

Il nostro staff


  • Fabrizio Fiorucci
    Affiliato

  • Pasquale Prencipe
    Responsabile

  • Silvia Gavioli
    Coordinatrice
Via Del Forte Braschi, 46 00167 Roma (RM)
Zona: Battistini - Pineta Sacchetti
Mostra su mappa
Orari: lunedì - venerdì 09:00-13:00 15:30-19.30, sabato 9:00/13:00
Affiliato
Immobiliare Pineta Sacchetti Srls
Via Del Forte Braschi, 46 00167 Roma (RM)

2026 Tecnocasa Franchising S.p.A. - P. IVA 08365160152 - Via Monte Bianco 60/A 20089 Rozzano (MI). Ogni agenzia ha un proprio titolare ed è autonoma. Privacy policy | Policy utilizzo | Cookie policy